Stage d'observation Architecte

2019 Ligne Point Carré
Stage Architecture

À propos

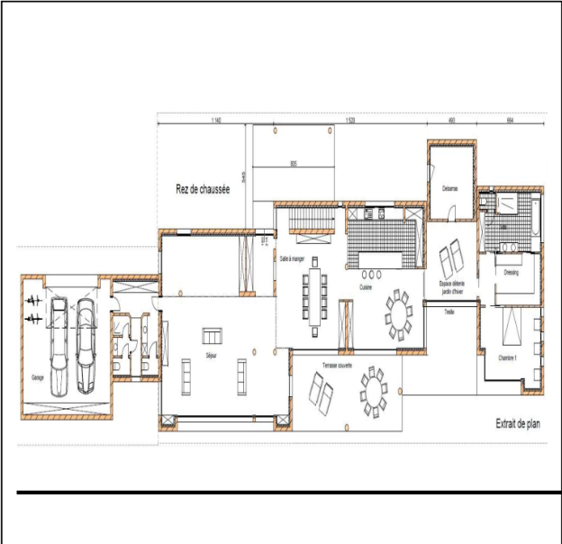
Stage d'observation de troisième réalisé au cabinet d'architecture Ligne Point Carré. Ce stage de découverte du monde professionnel a permis d'explorer le métier d'architecte et de découvrir les aspects techniques et créatifs de la conception architecturale.

Objectifs du stage

Le stage de troisième est une première immersion dans le monde professionnel, permettant aux élèves de découvrir un métier, un secteur d'activité et l'environnement de travail en entreprise.

Découvertes et observations

  • Conception architecturale : Observation du processus de création de plans et de maquettes
  • Logiciels professionnels : Découverte des outils de dessin assisté par ordinateur (DAO/CAO)
  • Rencontres clients : Participation aux échanges avec les clients et présentation de projets
  • Visites de chantiers : Découverte du suivi de chantier et de la réalisation concrète
  • Travail en équipe : Observation de la collaboration entre architectes, dessinateurs et ingénieurs

Compétences observées

  • Créativité et sens esthétique
  • Maîtrise technique et connaissance des matériaux
  • Utilisation de logiciels de conception 3D
  • Communication avec les clients
  • Respect des normes et réglementations

Apports personnels

Ce stage a été une première expérience enrichissante dans le monde professionnel. Bien que n'ayant pas poursuivi dans le domaine de l'architecture, cette découverte a confirmé l'intérêt pour les aspects techniques et la conception, compétences aujourd'hui appliquées dans le domaine du génie électrique.

Informations pratiques

Entreprise : Ligne Point Carré - Cabinet d'architecture

Durée : 1 semaine (stage d'observation de 3ème)

Période : 2019

Album Photo